Sélectionner une page

CONCOURS COLLEGE DE BETHUSY À LAUSANNE

CONCOURS 2025
Publication Espazium 2025

MAITRE D’OUVRAGE

Ville de Lausanne

Situé au nord du centre de Lausanne, dans un tissu urbain hétérogène, le campus de Béthusy est un lieu marquant, à la fois par sa dimension spatiale significative et par la qualité de ses usages quotidiens. Sa topographie en terrasses, ses alignements bâtis, ses préaux ouverts et ses poches boisées composent un ensemble au caractère fort et immédiatement lisible.

Plusieurs cheminements piétons traversent librement son périmètre, renforçant sa place dans la vie du quartier et sa porosité avec les espaces publics voisins.

Le site du collège est structuré de manière symétrique par des bâtiments indépendants alternant espaces extérieurs dégagés et zones densément arborées, créant un équilibre harmonieux entre bâti et nature.

La proposition d’implantation s’appuie sur cette structure, occupant l’espace libéré par les anciens pavillons en bois, situés à proximité du bâtiment principal des années 1930. Cette localisation stratégique permet de renforcer le caractère du préau sud, en l’encadrant avec élégance et en participant à la définition de cet espace central.

L’implantation en partie en sous-œuvre sert d’oportu-nité à la requalification de l’espace extérieur du préau sud, offrant ainsi un lieu résilient et adapté aux fortes chaleurs estivales. Par ailleurs, cette situation topographique favorise l’accès direct depuis la rampe sud, facilitant la liaison avec les établissements voisins, tout en maintenant la fluidité des cheminements piétons.

Cette implantation est également influencée par deux aspects essentiels du programme : d’une part, l’utilisation des équipements sportifs par les établissements du voisinage, notamment le collège de Monrepos, et d’autre part, le souhait de choisir un site central afin de privilégier un ensemble scolaire cohérent et d’éviter la dispersion des fonctions sur l’ensemble du site.

Enfin, le projet s’appuie sur une vision large de ce que pourrait être l’école idéale. Une école n’est jamais achevée : elle évolue avec son temps, ses usages, ses élé-ves. À ce titre, le site de la Bourgeoise, laissé libre, préserve une respiration essentielle dans le tissu urbain et conserve son potentiel pour d’éventuelles extensions futures.

 

Illustration © Onirisim

Informations détaillées

Sous l’écorce, le programme s’empile, dense et vivant, creusé dans la pente du site. Le projet s’enracine profondément dans le sol, libérant le préau historique et révélant un nouveau seuil en creux, intime et boisé. À la manière d’un tronc habité, les fonctions s’organisent en strates claires, du plus enfoui au plus ouvert : salle de gym, parascolaire, bibliothèque.

Chaque couche dialogue avec la lumière. L’épaisseur bâtie est perforée, traversée, ajourée, pour accueillir le jour, cadrer le paysage et inviter le vivant. Un bâtiment ramassé, enraciné, traversé de clarté. Un nouveau cœur pour le collège.

Ce découpage en strates correspond aussi à une volonté forte d’organiser des accès distincts et indépen-dants, afin de garantir la fluidité des circulations et la sécurité des usagers. Chaque fonction dispose ainsi de son entrée propre, facilitant l’usage simultané des équipements sportifs, parascolaires et scolaires, tout en favorisant une gestion optimale des flux au sein du bâtiment.

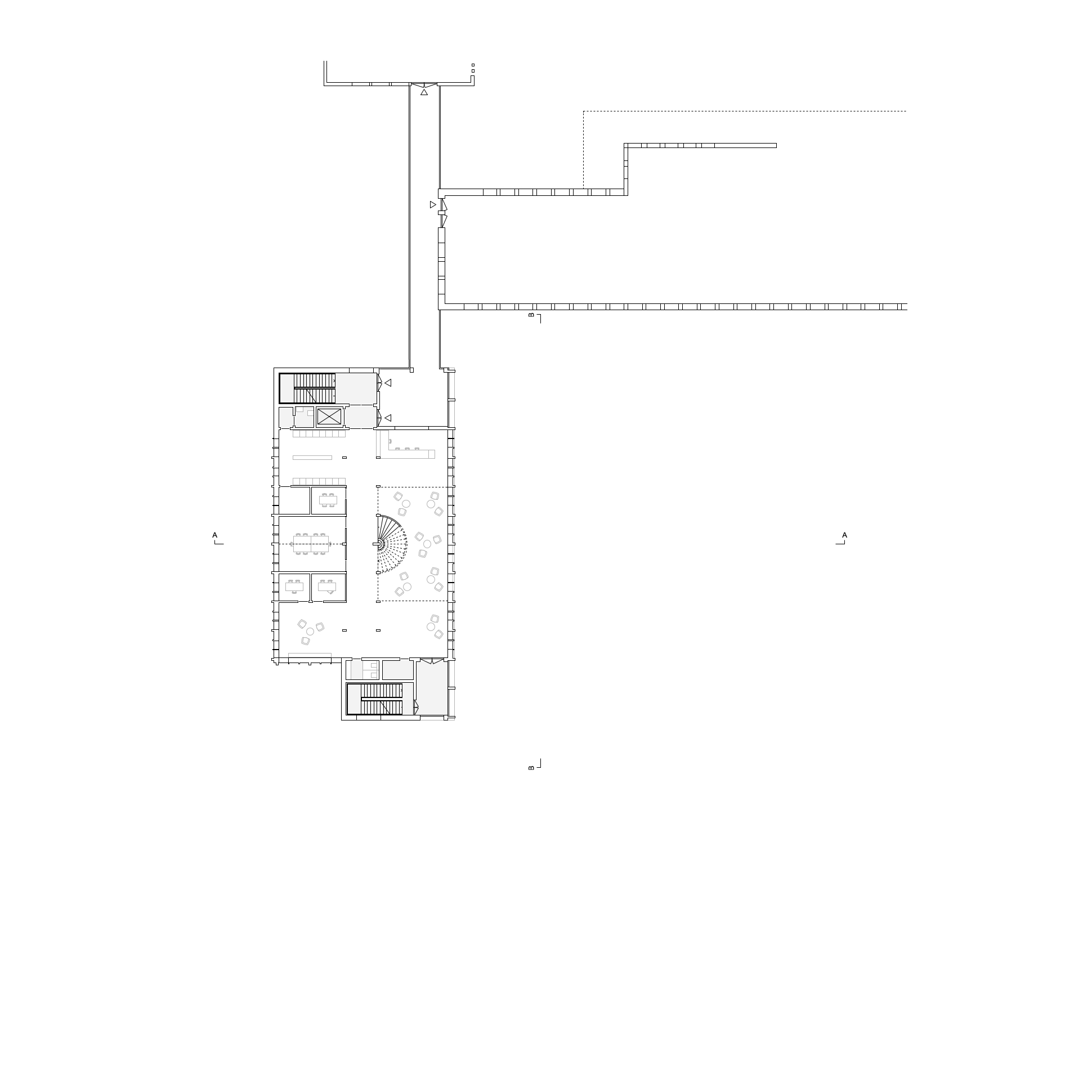
Le projet s’insère dans la partie sud du site du collège de Béthusy, en résonance avec la structure symétrique du site scolaire et en dialoque avec les bâtiments A et C. L’implantation du nouveau volume tire parti de la topographie en terrasses, structurant une nouvelle centralité sur le site tout en maintenant la lisibilité des espaces extérieurs. Le choix du site permet de remplacer les pavillons existants, sans qualité architecturale ni valeur d’usage, par un bâtiment fédérateur, au contact direct des préaux, des accès et des circulations principales du collège.

Ce positionnement crée une nouvelle polarité, au croisement des flux du collège de Béthusy et du collège de Mon-Repos. L’accès naturel depuis la rampe sud (palier intermédiaire de l’escalier Béthusy) assure une liaison efficace et fluide, tout en libérant le préau supérieur.

L’accès au pôle sportif s’effectue par le patio. De larges emmarchements plantés conduisent les élèves dans ce creux boisé, jusqu’au hall d’entrée, un espace gé-néreux, dimensionné pour accueillir des événements sportifs.

Dans l’épaisseur du mur, une buvette est in-tégrée. De part et d’autre du hall, un couloir central dessert toilettes et vestiaires. Un large escalier en demi-cercle descend vers le niveau inférieur, où deux grandes salles de sport VD2 se déploient sous 7 mètres de hauteur libre. La disposition des vestiaires se répète au sous-sol, le long des circulations. Grâce au patio et aux ouvertures dans les murs des salles de sport, la lumière naturelle et les connexions visuelles enrichissent les espaces.

 

L’entrée principale du parascolaire se situe au rez-de-chaussée, de plain-pied avec le préau sud. Ce niveau regroupe la Mensa, les salles polyvalentes et les bu-reaux, organisés autour d’un espace de desserte généreux qui joue également le rôle de vestiaire et de lieu de rencontre. Aux beaux jours, les activités peuvent facilement s’étendre vers l’extérieur. Les locaux techniques-cuisine, vestiaire du personnel, local de nettoyage et buanderie, local poubelles – sont situés au rez inférie-ur, reliés à la Mensa par la cage d’escalier principale, un ascenseur réservé à ces fonctions, et un accès direct depuis le parking, facilitant les livraisons.

 Les deux étages supérieurs accueillent la nouvelle bibliothèque centrale. Réunissant les espaces de l’actuelle bibliothèque et ceux du programme, elle offre un lieu cohérent, clair et stimulant. Un escalier courbe et un vide central articulent les deux niveaux.

L’ensemble comprend des espaces de lecture ouverts, des zones calmes et des boxes modulables pour le tra-vall en groupe, dans une ambiance propice à la concentration et à l’autonomie.

Le déplacement de la bibliothèque actuelle permet en parallèle la requalification des circulations dans le bâtiment des classes spéciales. Les larges coursives prévues dans les plans d’origine sont retrouvées. Le pôle décanat y est installé, rassemblant quatre bureaux mutualisés en trois espaces plus généreux que prévu au programme. Grâce aux décrochements de toiture, ces bureaux bénéficient d’une lumière naturelle traversante malgré leur profondeur. Enfin, une demi-salle de classe, anciennement dédiée à la bibliothèque, est transformée en salle de travaux pratiques, enrichissant l’offre pédagogique.

 L’ensemble du bâtiment est entièrement accessible aux personnes à mobilité réduite, grâce à un ascenseur de plain-pied desservant tous les niveaux, ainsi qu’à de larges portes facilitant les déplacements.

Ces aménagements garantissent une circulation fluide et sans obstacle, depuis l’extérieur jusqu’aux différents espaces du bâtiment.

 Le bâtiment est également positionné de manière à se raccorder à la passerelle existante reliant les bâtiments

A, B, C et D. Grâce à cette connexion des premiers étages et au nouvel ascenseur, l’ensemble de l’établissement devient désormais accessible aux personnes à mobilité réduite.

Dimensionné pour accueillir une civière ainsi qu’une nacelle technique, cet ascenseur permet également l’intervention des secours et un accès logistique via le parking du personnel situé à l’ouest du site.

L’accessibilité universelle a quidé l’ensemble des choix d’aménagement, assurant léquité d’usage et la fluidité des parcours pour tous les élèves, quels que soient leurs besoins.